Свисток для часок с кукушкой. - Страница 2 - Часовой форум Watch.ru
 
Вернуться назад   Часовой форум Watch.ru > Ремонт часов, обслуживание часов > Ремонт часов и обслуживание
Регистрация | Забыли пароль?

Ремонт часов и обслуживание

Всё о ремонте часов и обслуживании часов, часовое оборудование.
Текущий рейтинг темы — 
Ответ
 
Опции темы
  #11  
Старый 27.04.2011, 20:01
pyzhman pyzhman вне форума  
Новичок
 
Регистрация: 28.12.2010
Адрес: Russia
Сообщений: 8
Сказал(а) спасибо: 4
Поблагодарили 0 раз(а) в 0 сообщениях
2vasilij_8: высота звука, насколько представляю, зависит от расстояния переборки, противоположной меху, до конца корпуса. А каково оно у вас во втором свистке?
Ответить с цитированием
  #12  
Старый 30.04.2011, 20:03
Alekfilimon Alekfilimon вне форума  
Форумчанин
 
Регистрация: 29.05.2010
Адрес: Россия Рязань
Сообщений: 93
Сказал(а) спасибо: 18
Поблагодарили 14 раз(а) в 7 сообщениях
Спасибо за подробнейший разбор ремонта механизма ку-ку.Давно искал.Сам поднимал на этом форуме такую тему,но никак и никто не смог посоветвать что либо подобное.Спасибо.
Ответить с цитированием
  #13  
Старый 29.03.2013, 21:22
Pilot2272 Pilot2272 вне форума  
Новичок
 
Регистрация: 24.11.2012
Адрес: Сергиевск Россия
Сообщений: 95
Сказал(а) спасибо: 78
Поблагодарили 35 раз(а) в 20 сообщениях
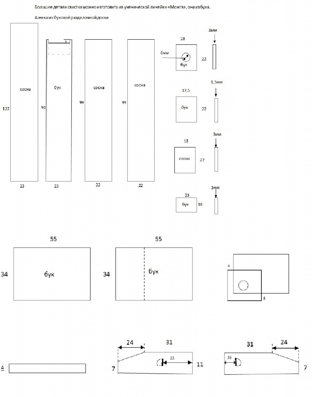
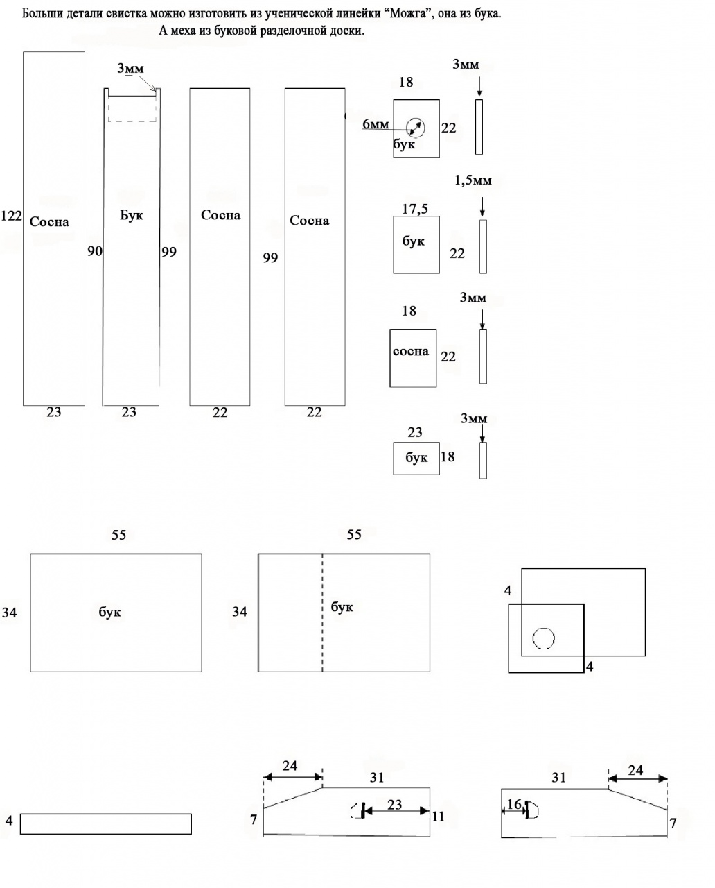
Благодаря этому посту изготовил для своей кукушки свистки. Но вот попала в мои руки Сердобская кукушка со свистками. И я сделал чертёж с размерами и материалом из которого сделана определённая часть свистка. А так же указал на каком расстоянии в мехе стоит петелька, они в левом и правом стоят на разном расстоянии от зева меха.
Миниатюры
Нажмите на изображение для увеличения
Название: свисток.jpg
Просмотров: 2840
Размер:	138.5 Кб
ID:	412974  
Ответить с цитированием
  #14  
Старый 29.03.2013, 22:09
Pilot2272 Pilot2272 вне форума  
Новичок
 
Регистрация: 24.11.2012
Адрес: Сергиевск Россия
Сообщений: 95
Сказал(а) спасибо: 78
Поблагодарили 35 раз(а) в 20 сообщениях
Вот чертёж по чётче, удалить из сообщения не смог.

Завтра добавлю фото свистков.

У рогатой заготовки размер выступашириной 2мм, а высотой 3мм, как раз получается ширина свистковой щели, но этот выступ можно и не делать. Видимо на конвеере с таким выступом проще зазор соблюсти.
Миниатюры
Нажмите на изображение для увеличения
Название: свисток.jpg
Просмотров: 2192
Размер:	152.8 Кб
ID:	413032  
Ответить с цитированием
Эти 4 пользователей сказали Спасибо! Pilot2272 за это сообщение:
Eess (04.12.2020), Erzyat (11.04.2021), Fleetwood (12.02.2025), Tackir06 (12.02.2020)
  #15  
Старый 31.03.2013, 11:04
Pilot2272 Pilot2272 вне форума  
Новичок
 
Регистрация: 24.11.2012
Адрес: Сергиевск Россия
Сообщений: 95
Сказал(а) спасибо: 78
Поблагодарили 35 раз(а) в 20 сообщениях
Вот фотографии свистка Сердобской кукушки на крышках видно отверстие под бумагой. Видимо, регулятор засыпали или вкладывали.
Миниатюры
Нажмите на изображение для увеличения
Название: 1.jpg
Просмотров: 1965
Размер:	223.9 Кб
ID:	413859   Нажмите на изображение для увеличения
Название: 2.jpg
Просмотров: 1695
Размер:	203.4 Кб
ID:	413860   Нажмите на изображение для увеличения
Название: 3.jpg
Просмотров: 1701
Размер:	229.7 Кб
ID:	413861   Нажмите на изображение для увеличения
Название: 4.jpg
Просмотров: 1632
Размер:	380.2 Кб
ID:	413862   Нажмите на изображение для увеличения
Название: 5.jpg
Просмотров: 1751
Размер:	214.8 Кб
ID:	413865   Нажмите на изображение для увеличения
Название: 6.jpg
Просмотров: 1546
Размер:	192.6 Кб
ID:	413866   Нажмите на изображение для увеличения
Название: 7.jpg
Просмотров: 1697
Размер:	208.8 Кб
ID:	413870   Нажмите на изображение для увеличения
Название: 8.jpg
Просмотров: 1617
Размер:	160.0 Кб
ID:	413871  
Ответить с цитированием
Этот пользователь сказал Спасибо! Pilot2272 за это сообщение:
Tackir06 (12.02.2020)
  #16  
Старый 31.03.2013, 12:11
Pilot2272 Pilot2272 вне форума  
Новичок
 
Регистрация: 24.11.2012
Адрес: Сергиевск Россия
Сообщений: 95
Сказал(а) спасибо: 78
Поблагодарили 35 раз(а) в 20 сообщениях
Уточняю: донце у свистка, который кукует первым, вклеивается на 28мм от нижнего края, а у второго свистка вровень с нижним краем. На пятом фото хорошо видно.
Кожа в мехах действительно очень тонкая, как бумага, раза в 2-4 тоньше чем кожа перчаток. Подклеивал и тетрадным листом и кусочком от 50 рублёвой купюры.
Ответить с цитированием
Эти 2 пользователей сказали Спасибо! Pilot2272 за это сообщение:
Erzyat (11.04.2021), Tackir06 (12.02.2020)
  #17  
Старый 01.04.2013, 21:09
Pilot2272 Pilot2272 вне форума  
Новичок
 
Регистрация: 24.11.2012
Адрес: Сергиевск Россия
Сообщений: 95
Сказал(а) спасибо: 78
Поблагодарили 35 раз(а) в 20 сообщениях
Вот фото свистка первого свиста с вложенным листком, показывающим глубину установки донца. А у свистков часов Маяк хвостов нет, а все остальные размеры такие же.
Миниатюры
Нажмите на изображение для увеличения
Название: IMG_2789.jpg
Просмотров: 1650
Размер:	232.3 Кб
ID:	414802  
Ответить с цитированием
Этот пользователь сказал Спасибо! Pilot2272 за это сообщение:
Erzyat (11.04.2021)
  #18  
Старый 05.04.2013, 11:27
wordi wordi вне форума  
Новичок
 
Регистрация: 04.04.2013
Адрес: россия москва
Сообщений: 1
Сказал(а) спасибо: 0
Поблагодарили 0 раз(а) в 0 сообщениях
Здравствуйте. У меня есть свистки, но истлели меха. Решил поменять, сейчас в поиске материала для мехов.
Дую в свисток с донцем которое утопленно , свисток издаёт звук похожий на кукушку.
А дую в свисток с донцем которое в ровень со стенками, то нет никакого звука.
Вопрос: клеить новые меха или с начала добиться звучания?
Ответить с цитированием
  #19  
Старый 05.02.2014, 00:41
Аватар для Ramer31
Ramer31 Ramer31 вне форума  
Новичок
 
Регистрация: 04.02.2014
Адрес: Белгород
Сообщений: 3
Сказал(а) спасибо: 0
Поблагодарили 1 раз в 1 сообщении
Цитата:
Сообщение от wordi Посмотреть сообщение
Здравствуйте. У меня есть свистки, но истлели меха. Решил поменять, сейчас в поиске материала для мехов.
Дую в свисток с донцем которое утопленно , свисток издаёт звук похожий на кукушку.
А дую в свисток с донцем которое в ровень со стенками, то нет никакого звука.
Вопрос: клеить новые меха или с начала добиться звучания?
В былые времена использовал бумагу черную в которую была упакованна бумага для фотопечати(фотобумага) ее можно спросить там где делают фотографии кодак наверняка у них есть подобная, но та что была в СССР временах подходила отлично и работает до сих пор. А вот с регулировкой звука у самого проблемма тк тот свисток что с утопленным дном издает звук, а второй кроме шипа воздуха ничего не издает и так видимо еще с завода было тк никто его не разбирал. Кто сталкивался с таким и как исправить?
Ответить с цитированием
  #20  
Старый 05.02.2014, 22:09
Аватар для Александр Беляков
Александр Беляков Александр Беляков вне форума  
Форумчанин
 
Регистрация: 30.01.2011
Адрес: Нижегородская
Сообщений: 250
Сказал(а) спасибо: 88
Поблагодарили 292 раз(а) в 117 сообщениях
Цитата:
Сообщение от Ramer31 Посмотреть сообщение
Кто сталкивался с таким и как исправить?
В первую очередь проверьте герметичность корпуса гудка (можно просто элементарно обмотать корпус изолентой), очистить - продуть внутренности (иногда там что только не встречается) и так же можно мелкой наждачкой зачистить кромку отмеченную на рисунке.
После всех этих процедур как правило гудок гудит как и положено.
Миниатюры
Нажмите на изображение для увеличения
Название: 22.jpg
Просмотров: 1911
Размер:	46.8 Кб
ID:	628342   Нажмите на изображение для увеличения
Название: IMG_0041.jpg
Просмотров: 1927
Размер:	339.5 Кб
ID:	628343  
Ответить с цитированием
Эти 3 пользователей сказали Спасибо! Александр Беляков за это сообщение:
krasavchik (26.04.2020), yura80 (25.02.2016), Андрей Крукович (06.02.2014)
Ответ
Метки
свисток


Быстрый переход

Похожие темы
Тема Автор Раздел Ответов Последнее сообщение
Часы с кукушкой Ego Интерьерные часы 210 19.11.2020 10:46
Скрипят часы с кукушкой Маяк udmi Интерьерные часы 1 09.04.2011 10:44
Где отремонтировать часы Маяк с кукушкой max717 Ремонт часов и обслуживание 0 01.11.2010 11:47
О часах с кукушкой Ego Новости 2 13.09.2010 09:48


Часовой пояс UTC +3, время: 16:11.