Планировка новой квартиры - Страница 2 - Часовой форум Watch.ru
 
Вернуться назад   Часовой форум Watch.ru > Офтопик
Регистрация | Забыли пароль?

Офтопик

Ответ
 
Опции темы
  #11  
Старый 20.04.2016, 20:02
Sergei1980 Sergei1980 вне форума  
Доступ временно ограничен | Temporarily restricted access
 
Регистрация: 26.10.2009
Адрес: Tamil Nadu, India
Сообщений: 2,406
Сказал(а) спасибо: 36,909
Поблагодарили 55,739 раз(а) в 15,594 сообщениях
Сделайте четкое зонирование. Уберите из коридора стол со стульями, не пытайтесь совместить гостиную с кухней и коридором. Сделайте нормальную кухню и коридор.
Я бы вообще кухню оградил перегородкой с дверью. А то вся квартира как часть кухни получается.
Меньше запахов при готовке попадет в жилую зону, плюс родительские посиделки на кухне-столовой с гостями или без будут слышны детям в спальне значительно меньше, чем за столом посреди коридора прямо возле двери детской комнаты
Про санузел сказали выше. В общем планировка никакая.
Ответить с цитированием
Эти 3 пользователей сказали Спасибо! Sergei1980 за это сообщение:
marka (21.04.2016), SOKOLOV1974 (20.04.2016), Ван-Грох (05.05.2016)
  #12  
Старый 20.04.2016, 20:06
Brodyaga Brodyaga вне форума  
Временно заблокирован | Temporarily blocked
 
Регистрация: 15.05.2011
Адрес: Deutschland / Ukraine
Сообщений: 2,027
Сказал(а) спасибо: 6,438
Поблагодарили 12,181 раз(а) в 3,340 сообщениях
и детская кровать вполтную к ванне, даже если через перегородку.
будет шумно принимать душ когда ребенок уже отдыхает.
писменный стол в детской перенесите, чтобы естественное освещение падало из окна.
Ответить с цитированием
Этот пользователь сказал Спасибо! Brodyaga за это сообщение:
marka (21.04.2016)
  #13  
Старый 20.04.2016, 21:36
Аватар для alex68
alex68 alex68 вне форума  
Форумчанин
 
Регистрация: 28.02.2009
Адрес: СССР
Сообщений: 3,128
Сказал(а) спасибо: 4,364
Поблагодарили 13,073 раз(а) в 1,811 сообщениях
Туалет и ванную разделите.
Ответить с цитированием
Этот пользователь сказал Спасибо! alex68 за это сообщение:
marka (21.04.2016)
  #14  
Старый 21.04.2016, 09:33
Аватар для marka
marka marka вне форума  
Новичок
 
Регистрация: 01.06.2011
Адрес: Москва
Сообщений: 49
Сказал(а) спасибо: 20
Поблагодарили 59 раз(а) в 9 сообщениях
Всем спасибо за комментарии, учитываем и дорабатываем.

------- ДОБАВЛЕНО ЧЕРЕЗ 11 МИН --------

Цитата:
Сообщение от DPS Посмотреть сообщение
На мой взгляд.
Площадь, которая занята встроенным шкафом при спальне, стило бы отнести к детской, при этом чуть изменив планировку первой. Для достаточного по размерам шкафа.
Детёнки, как показывает практика, больше находятся в своей комнате (игры, уроки и т.п.) а родители в спальне лишь почивают.
Поэтому наследникам всегда стоит отвести побольше пространства.
тут просто задумка такая, чтобы на этот запас места во взрослой комнате можно было уместить детскую кроватку (на перспективу)

Цитата:
Сообщение от DPS Посмотреть сообщение
По проводу санузла.
Стоит входить на зеркало, а не на унитаз - поменять местами.
Но значительно лучше прислушаться к коллеге, писавшему выше и вовсе изменить планировку.
согласен, ни разу даже об этом не подумал, однозначно учтем

Цитата:
Сообщение от DPS Посмотреть сообщение
Если хватит места, за диваном в гостиной можно разместить узкую барную стойку. Чай, завтрак.
Но это уже от привычного уклада зависит))
с радостью бы запихнул бы куда-нибудь барную стойку, но за диваном места маловато для нее

Цитата:
Сообщение от Butchara Посмотреть сообщение
Не, ну ещё можно понять, когда человек спрашивает у кучи незнакомцев, какие часы ему купить.
Но в какой квартире ему жить - это уже слишком.
Я спросил не в какой квартире жить, а совета или предложения как грамотно использовать пока что пустое пространство, у людей которые возможно проходили такого рода работы.
Не понимаю зачем вы тут комментарий оставили? Обсудить что можно, а что нельзя обсуждать в офтопике с незнакомыми людьми?

Цитата:
Сообщение от Brodyaga Посмотреть сообщение
и детская кровать вполтную к ванне, даже если через перегородку.
будет шумно принимать душ когда ребенок уже отдыхает.
писменный стол в детской перенесите, чтобы естественное освещение падало из окна.
дельные замечания, учту

Цитата:
Сообщение от alex68 Посмотреть сообщение
Туалет и ванную разделите.
как вариант
Ответить с цитированием
  #15  
Старый 21.04.2016, 09:57
Аватар для Butchara
Butchara Butchara вне форума  
Форумчанин
 
Регистрация: 29.07.2011
Адрес: Moscow/ราชอาณาจักรไทย
Сообщений: 8,157
Сказал(а) спасибо: 12,444
Поблагодарили 19,874 раз(а) в 7,501 сообщениях
Цитата:
Сообщение от marka Посмотреть сообщение
Не понимаю зачем вы тут комментарий оставили? Обсудить что можно, а что нельзя обсуждать в офтопике с незнакомыми людьми?
Ну видите, вы не понимаете, я не понимаю. Ничья.
__________________
"Ганг - чистый, грязные - мысли человека"
Ответить с цитированием
  #16  
Старый 21.04.2016, 14:02
Аватар для DPS
DPS DPS вне форума  
Форумчанин
 
Регистрация: 07.01.2010
Адрес: КолхозЪ им. В.И. Ленина
Сообщений: 5,311
Сказал(а) спасибо: 5,255
Поблагодарили 18,074 раз(а) в 5,497 сообщениях
Цитата:
Сообщение от marka Посмотреть сообщение
как вариант
Лучше бы вовсе сделать еще один санузел, назовем его гостевым, выделить чуть больше 1 м.кв. на него.
Унитаз + небольшая раковина, пусть дверь даже наружу будет открываться.
В свете новых известий о возможном расширении семьи наличие двух санузлов (унитазов) вовсе необходимо с моей точки зрения.
Иначе в "пиковые" часы очередь возникнет.
Да и почтенной второй половине не дадут провести законные 2 часа в ванной.
А по-спортивному, как показывает практика, дЕвицы не умеют.
Ответить с цитированием
  #17  
Старый 21.04.2016, 19:08
Аватар для amun
amun amun вне форума  
Форумчанин
 
Регистрация: 25.07.2011
Адрес: Санкт-Петербург
Сообщений: 667
Сказал(а) спасибо: 4,907
Поблагодарили 1,589 раз(а) в 413 сообщениях
Миниатюры
Нажмите на изображение для увеличения
Название: Безымянный1.jpg
Просмотров: 184
Размер:	153.9 Кб
ID:	1375710  
Ответить с цитированием
Этот пользователь сказал Спасибо! amun за это сообщение:
Nitron (05.05.2016)
  #18  
Старый 21.04.2016, 19:16
Аватар для DPS
DPS DPS вне форума  
Форумчанин
 
Регистрация: 07.01.2010
Адрес: КолхозЪ им. В.И. Ленина
Сообщений: 5,311
Сказал(а) спасибо: 5,255
Поблагодарили 18,074 раз(а) в 5,497 сообщениях
Кухню (мокрая зона) нельзя над спальней соседей снизу размещать.
Такую перепланировку не согласуют в Жилинспекции.
О канализации с кухни в общедомовые стояки вообще молчу((

Вот ссылка. Может и ТС поможет.

http://www.pereplanirovkamos.ru/chto...lanirovke.html
Ответить с цитированием
Этот пользователь сказал Спасибо! DPS за это сообщение:
Butchara (21.04.2016)
  #19  
Старый 21.04.2016, 19:28
Sergei1980 Sergei1980 вне форума  
Доступ временно ограничен | Temporarily restricted access
 
Регистрация: 26.10.2009
Адрес: Tamil Nadu, India
Сообщений: 2,406
Сказал(а) спасибо: 36,909
Поблагодарили 55,739 раз(а) в 15,594 сообщениях
Грамотно расположить санузлы (избавиться от совмещенного, так как для семьи это немыслимая ахинея) и отказаться от утопической идеи использовать коридор как часть кухни-столовой. Вот и все, что нужно сделать, чтобы довести планировку до ума. Комнаты спланированы нормально
Ответить с цитированием
  #20  
Старый 05.05.2016, 14:49
Аватар для marka
marka marka вне форума  
Новичок
 
Регистрация: 01.06.2011
Адрес: Москва
Сообщений: 49
Сказал(а) спасибо: 20
Поблагодарили 59 раз(а) в 9 сообщениях
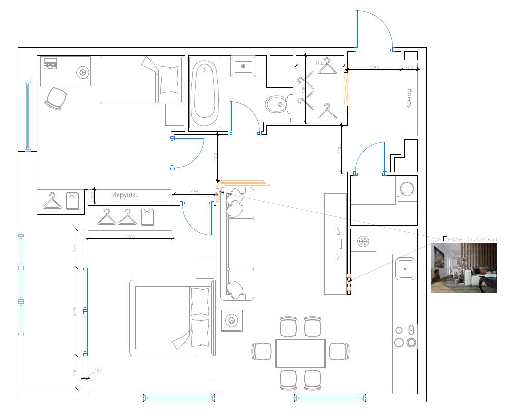
всем привет.
в общем наверное вот последний вариант.
Нажмите на изображение для увеличения
Название: Точечный рисунок.JPG
Просмотров: 97
Размер:	70.6 Кб
ID:	1389497

туалет с ванной разделять не стали, т.к. из-за этого пришлось бы пожертвовать гардеробной.

предложения/замечания с радостью почитаю.
заранее спасибо!
Ответить с цитированием
Ответ


Быстрый переход

Похожие темы
Тема Автор Раздел Ответов Последнее сообщение
Капитальный ремонт квартиры Rudy Waltz Офтопик 1892 20.03.2023 15:33
Сдача квартиры. Klark03 Офтопик клуба 0 16.12.2012 16:21
Дизайн проект квартиры implantolog Офтопик 30 24.08.2011 08:58


Часовой пояс UTC +3, время: 19:42.