Цитата:
Сообщение от alec
Поэтому любой профиль ПВХ не держит тепло по трем причинам: 1. Недостаточная толщина самого профиля, так ках основная потеря идет не по камерам, а по материалу. 2. Недостаточная толщина самого стеклопакета, так как надо реально минимум 100 мм, а сделать такой зазор невозможно. 3. Мостик холода, находящийся на примыкании стеклопакета к профилю.
|
Это неверно.. Толщина стенок пвх решающего значения на сопротивление теплопередачи не имеет, влияет сильнее на статику. Профиль и трёхкамерный держит тепло, но есть ограничения по климату, на севере нужен пятикамерный, в Сочи практически везде ставят однокамерные пакеты шириной 24 мм. и даже меньше. Стеклопакеты в 100 мм - это абсурд!

Тогда стена здания должна быть два метра толщиной, чтобы уравнять теплопроводность такого пакета и стены!!

Для европейской части РФ толщиня двухкамерного в 32 мм- это уже очень хорошо! Откуда Вы берёте такие значения???

Никакого мостика холода в местах примыкания пакета к раме нет, он есть в самом стеклопакете, алюминиевая рамка между стёклами (спейсер) и есть этот мостик! Поэтому краевая зона пакета всегда холоднее срединной и по этой причине происходит запотевание по краям, а чаще всего внизу пакета, низ может даже и промерзать, если недостаточное отопление в помещении.
Цитата:
Сообщение от alec
По винтечу - перинатальный наш центр, оконные проемы большие. Выявилась следующая особенность - при знакопеременных нагрузках начали трещать (иметь угловые трещины) стекла. Оконщики сначала съезжали на строителей, типа ударили. Но потом, не буду вдаваться в подробности как, было доказано. Что в этом их вина, при закрывании окна стойка вибрировала + мороз/тепло. Профиль жестковат и хлиповат.
|
Профиль не может быть одновременно жестковат и хлипковат

У Вас проёмы 2400х2400, что вы хотите? Я уверен, что конфигурация окон там как на моей схеме, или похожая, делал я десятки больниц разных.
Я уже сто раз выше писал, что производитель в таких случаях ставит в пвх минимальное армирование и профиль с минимальной толщиной стенок, то есть
облегчённый!!! У Винтека такой есть, он есть у всех клонов и неклонов тоже, называется по-разному, у КВЕ - Обьект (!) НОВОТЕКС - Лайт...и.т.д. Практически все так поступают, когда работают на "корпорацию" - такой внутриоконный сленг, имея в виду большой заказ за небольшие деньги из говна. Вот тогда туда ставят всё, что по 10 рублей, и ваш центр, уверен на 10000%, сделан именно так!! И пакеты будут лопаться из-за хреновой статики, и стойки ( импоста) гулять, там железо внутри как фольга!
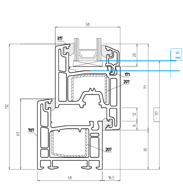
По размерам стеклопакетов -
они всегда и у всех систем имеют размер минус 10 мм. от внутренней плоскости профиля!! То есть по 5 мм. по краям. У Вас - 20 мм, пакет цепляется самым краем и может при сильной ветровой нагрузке выпасть. Это стопудовый косяк производителя, возьмите каталог Винтека и посмотрите на таблицу остекления, там будет 10 мм. Не понимаю, почему не предьявили рекламацию?

На второй схеме сечение большинства трёхкамерных систем, там синим показал расстояние 10 мм.