Размеры и диаметр безеля Aмфибии - Страница 3 - Часовой форум Watch.ru
 
Вернуться назад   Часовой форум Watch.ru > Российские часы > Восток
Регистрация | Забыли пароль?

Восток

Форум о часах Восток.
Текущий рейтинг темы — 
Ответ
 
Опции темы
  #21  
Старый 06.05.2011, 23:18
Аватар для STILL73
STILL73 STILL73 вне форума  
Форумчанин
 
Регистрация: 18.09.2009
Адрес: Русская Германия
Сообщений: 978
Сказал(а) спасибо: 361
Поблагодарили 3,579 раз(а) в 560 сообщениях
Вторая попытка! Безель под Сейковский вкладыш( толщину его только незнаю). Эскиз "сырой" , дополняйте и исправляйте мои огрехи! Совместно должно получится! На словах добавлю, на готовом безеле, надо сделать лыску под нож, для снятия, т.к. в моем варианте безель в плотную садится к корпусу. Ну и конечно можно делать и не под вкладыш, просто буртик вверху не делать.
Миниатюры
Нажмите на изображение для увеличения
Название: 100D1025.jpg
Просмотров: 1861
Размер:	401.5 Кб
ID:	125723  
__________________
Citizen Aqualand Promaster
Ответить с цитированием
Эти 4 пользователей сказали Спасибо! STILL73 за это сообщение:
den3rats (26.08.2022), Keytujd (11.05.2011), Rosswel (21.04.2015), Yakovlev (29.11.2011)
  #22  
Старый 10.05.2011, 21:59
Аватар для Bиuineg
Bиuineg Bиuineg вне форума  
Форумчанин
 
Регистрация: 10.02.2011
Адрес: Россия
Сообщений: 524
Сказал(а) спасибо: 206
Поблагодарили 562 раз(а) в 163 сообщениях
Вот, только что накидал эскиз востоковского безеля.

Конечно, надо накидать еще и эскиз корпуса часов, чтобы рассчитать допуска, но...
Ответить с цитированием
Эти 2 пользователей сказали Спасибо! Bиuineg за это сообщение:
Keytujd (11.05.2011), STILL73 (11.05.2011)
  #23  
Старый 11.05.2011, 09:11
Аватар для Keytujd
Keytujd Keytujd вне форума  
Форумчанин
 
Регистрация: 12.08.2010
Адрес: Казахстан, Караганда
Сообщений: 2,194
Сказал(а) спасибо: 67,555
Поблагодарили 5,337 раз(а) в 1,033 сообщениях
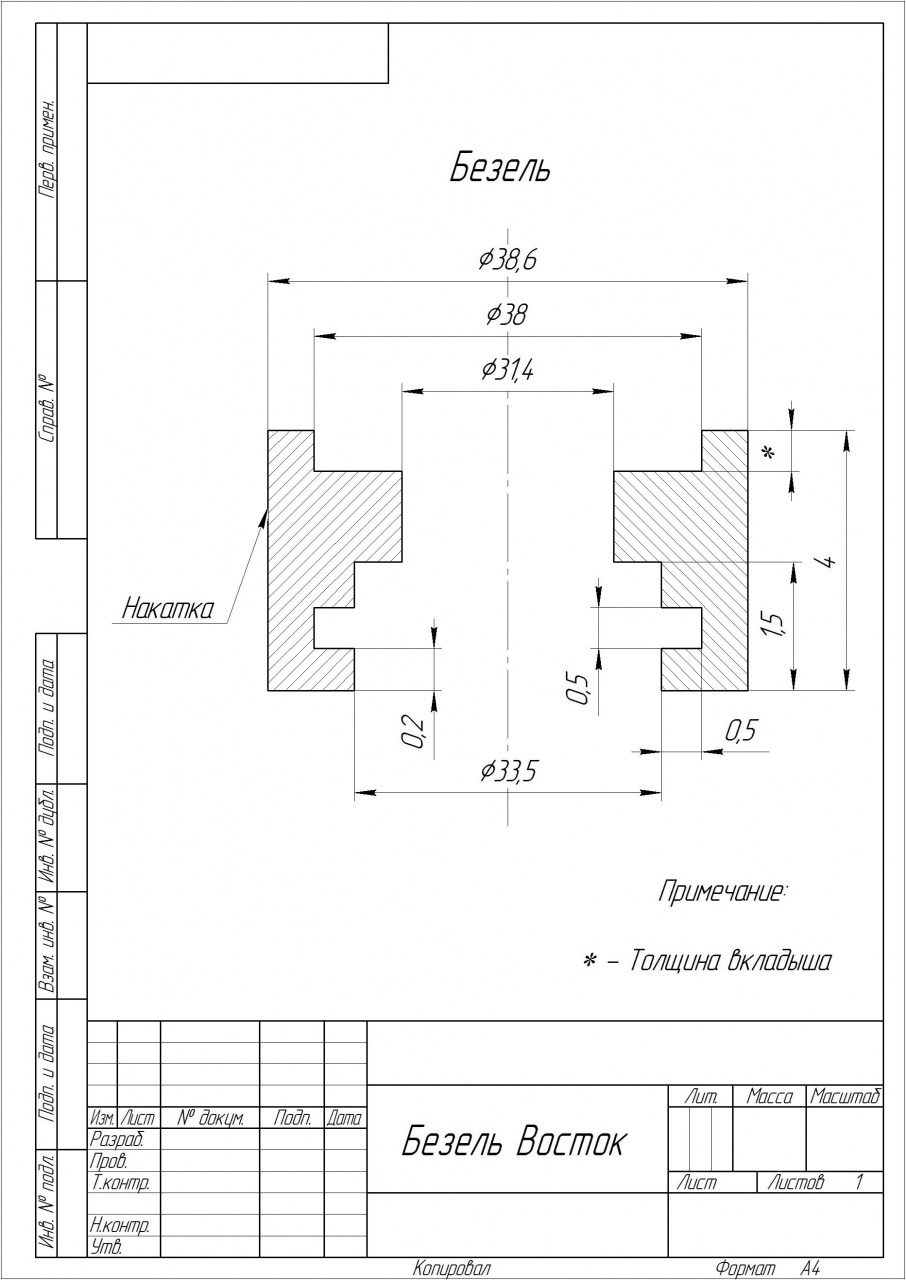
Вот чертежи по эскизам Bиuineg и STILL73. Дополняйте размерами итд.
Миниатюры
Нажмите на изображение для увеличения
Название: Чертеж1.jpg
Просмотров: 3070
Размер:	214.5 Кб
ID:	126740   Нажмите на изображение для увеличения
Название: Чертеж2.jpg
Просмотров: 2808
Размер:	207.2 Кб
ID:	126741  
Ответить с цитированием
Эти 23 пользователей сказали Спасибо! Keytujd за это сообщение:
Alexander55O (26.05.2017), asap (24.12.2011), barmaley2 (15.09.2012), BYUM (11.05.2011), Cayenne S (25.12.2011), CHASPROM (02.10.2012), corel (21.06.2013), den3rats (26.08.2022), DronT MOCKBA (22.12.2011), igmarc (11.05.2011), KALJAN (20.02.2015), Metallic (07.03.2017), Mihamoto (18.12.2012), NEWGUEST (11.05.2011), odyssey (06.05.2015), Romany4 (15.10.2012), Rump (27.12.2013), STILL73 (11.05.2011), taburedka (24.03.2013), Tokar (16.05.2012), vanyamasha (12.01.2015), Vodalex (30.07.2013), Yakovlev (29.11.2011)
  #24  
Старый 11.05.2011, 09:23
Аватар для STILL73
STILL73 STILL73 вне форума  
Форумчанин
 
Регистрация: 18.09.2009
Адрес: Русская Германия
Сообщений: 978
Сказал(а) спасибо: 361
Поблагодарили 3,579 раз(а) в 560 сообщениях
Keytujd суппер у Вас получилось! Теперь в интернете будут ходить Ваши эскизы и будут писать что это якобы заводские! Осталось пробные варианты безелей изготовить и подкоректировать если где нестыковки получились!
__________________
Citizen Aqualand Promaster
Ответить с цитированием
  #25  
Старый 11.05.2011, 09:30
Аватар для Keytujd
Keytujd Keytujd вне форума  
Форумчанин
 
Регистрация: 12.08.2010
Адрес: Казахстан, Караганда
Сообщений: 2,194
Сказал(а) спасибо: 67,555
Поблагодарили 5,337 раз(а) в 1,033 сообщениях
до пробных вариантов там размеров некоторых не хватает.А так может кто возьмется выточит!
Ответить с цитированием
  #26  
Старый 11.05.2011, 09:34
Аватар для STILL73
STILL73 STILL73 вне форума  
Форумчанин
 
Регистрация: 18.09.2009
Адрес: Русская Германия
Сообщений: 978
Сказал(а) спасибо: 361
Поблагодарили 3,579 раз(а) в 560 сообщениях
Вот ссылка на вкладыш от Сейки, под что я рисовал :
http://cgi.ebay.de/Lunette-Bezel-Bis...item1e60771d40
__________________
Citizen Aqualand Promaster
Ответить с цитированием
Этот пользователь сказал Спасибо! STILL73 за это сообщение:
Keytujd (11.05.2011)
  #27  
Старый 24.12.2011, 16:13
SergeyPlishkin SergeyPlishkin вне форума  
Форумчанин
 
Регистрация: 24.10.2011
Адрес: Урал
Сообщений: 258
Сказал(а) спасибо: 439
Поблагодарили 456 раз(а) в 175 сообщениях
Всем привет, оживлю тему.
Решил заменить безель, на классической амфибии для использования сеиковского вкладыша

Думаю стоит попробовать доделать начатое в этой ветке =) Деталь не столь сложная в изготовлении, но необходимо сделать точный чертёж.
Уважаемый STILL73 и Keytujd, спасибо за набросок и измерение. В изготовлении такой детали нужна точность, STILL73 , ты чем делал замеры? Погрешность измерения какова?
На счёт недостающего размера толщины накладки задал вопрос продавцу, ждём ответ.
Keytujd, а на чертеже слово "накатка", что обозначает?
Возможно изготовление будет недорогим, если выйду на моторный завод нашего города, там такие детали с закрытыми глазами делают. Если делать у обычного токаря, то будет подороже и не настолько качественно, как на заводском оборудовании. Я к тому что, если выйдет недорого сделаю партию побольше, думаю желающих приобрести здесь наберётся, тем более дело идейное, лишнего не возьму )
Если кто-то имеет возможность снять точные размеры классической безели - прошу помочь, сравним размеры с уже имеющимися, сделаем выводы.
И ещё вопрос, кто знает как устроена трещётка в безелях? Может даже удастся сделать невозможное - безель с трещёткой на классической амфибии?
Ответить с цитированием
Эти 4 пользователей сказали Спасибо! SergeyPlishkin за это сообщение:
Cruelrest (24.12.2011), igmarc (24.12.2011), Keytujd (24.12.2011), NEWGUEST (24.12.2011)
  #28  
Старый 24.12.2011, 19:32
igmarc igmarc вне форума  
Форумчанин
 
Регистрация: 31.07.2010
Адрес: Самарская область
Сообщений: 507
Сказал(а) спасибо: 510
Поблагодарили 251 раз(а) в 119 сообщениях
Спасибо за труды.Я б не отказался для смену безеля накладкой.
Ответить с цитированием
  #29  
Старый 24.12.2011, 21:03
Аватар для Slepoy
Slepoy Slepoy вне форума  
Форумчанин
 
Регистрация: 19.01.2011
Адрес: РФ Крайний север
Сообщений: 2,074
Сказал(а) спасибо: 2,996
Поблагодарили 3,672 раз(а) в 1,057 сообщениях
Цитата:
Сообщение от SergeyPlishkin Посмотреть сообщение

а на чертеже слово "накатка", что обозначает?
И ещё вопрос, кто знает как устроена трещётка в безелях? Может даже удастся сделать невозможное - безель с трещёткой на классической амфибии?
Накатка- это рифленая поверхность на торце базеля, другими словами, чтобы было за что вращать.
Если интересно, посмотрите надежную конструкцию с трещеткой, вращение в одну сторону (при повороте, звук поросячего хрюка).
Миниатюры
Нажмите на изображение для увеличения
Название: IMG_5422.jpg
Просмотров: 1736
Размер:	297.3 Кб
ID:	196334   Нажмите на изображение для увеличения
Название: IMG_5427.jpg
Просмотров: 1698
Размер:	283.4 Кб
ID:	196335   Нажмите на изображение для увеличения
Название: IMG_5428.jpg
Просмотров: 1752
Размер:	270.8 Кб
ID:	196336  
Ответить с цитированием
  #30  
Старый 25.12.2011, 06:37
SergeyPlishkin SergeyPlishkin вне форума  
Форумчанин
 
Регистрация: 24.10.2011
Адрес: Урал
Сообщений: 258
Сказал(а) спасибо: 439
Поблагодарили 456 раз(а) в 175 сообщениях
Цитата:
Сообщение от Slepoy Посмотреть сообщение
Накатка- это рифленая поверхность на торце базеля, другими словами, чтобы было за что вращать.
Если интересно, посмотрите надежную конструкцию с трещеткой, вращение в одну сторону (при повороте, звук поросячего хрюка).
Хорошее решение, но слишком мелкие детали сложно будет точно изготовить, соответственно всё будет люфтить. Но пока не будем исключать этот вариант.
Вот здесь есть устройство безеля от Ориент Мако, однако смогут ли такую штуку изготовить на заказ и из какой стали, чтоб пружинила, пока незнаю.
Вобщем до нового года всё-равно не успеть, можно спокойно обдумать технические решения. Буду готовить два варианта, с тестовой трещёткой и обычную.
Предложения и идеи принимаются, даже самые необычные, я за коллективный разум )
Ответить с цитированием
Ответ


Быстрый переход

Похожие темы
Тема Автор Раздел Ответов Последнее сообщение
Замена безеля на Steinhart GMT Ocean Konrad Steinhart 8 24.02.2017 20:16
Стоимость и замена безеля commentator Rolex 11 02.01.2015 18:11
Новинка Ролекс до Безеля 2010 Akira Подделки часов, "копии часов" 12 18.12.2009 12:48
Замена безеля на Omega SE PO santana75 Ремонт часов и обслуживание 16 21.09.2009 12:51


Часовой пояс UTC +3, время: 14:02.